2-Zimmer Neubauwohnung mit Balkon im DG in Bodman-Ludwigshafen am Bodensee
/in Baden-Württemberg, Bodman-Ludwigshafen, Deutschland, Freiburg, Rottweil Kauf Wohnung/von wartungBuhlstraße 2
Buhlstraße 2Grundlagen
Beschreibung
- Beschreibung:
Beschreibung
Dachgeschosswohnung mit Balkon – Neubau in Bodman-Ludwigshafen
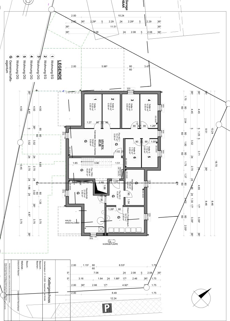
Diese elegante 2-Zimmer-Dachgeschosswohnung bietet auf ca. 62,54 m² Wohnfläche ein komfortables Zuhause mit besonderem Charme.
Sie liegt im obersten Geschoss eines modernen Neubaus mit nur sechs Wohneinheiten in ruhiger Lage von Bodman-Ludwigshafen.
Der Baubeginn ist am 15. November 2025, die Fertigstellung bis 15. November 2027 geplant.Wohnen mit Weitblick
Der offen gestaltete Wohn- und Essbereich mit integrierter Küche überzeugt durch viel Licht, eine angenehme Raumhöhe und Zugang zum Balkon mit ca. 9,27 m².
Hier genießen Sie sonnige Stunden und einen schönen Ausblick über die Umgebung.Das Schlafzimmer bietet mit rund 16,5 m² ausreichend Platz für ein großes Bett und einen Kleiderschrank.
Das moderne Tageslichtbad verfügt über eine bodengleiche Dusche und hochwertige Sanitärausstattung.
Ein praktischer Abstellraum in der Wohnung sorgt zusätzlich für Ordnung.
Über den Aufzug gelangen Sie barrierefrei und bequem direkt bis ins Dachgeschoss.Energieeffizienz & Ausstattung
Das Gebäude wird als energieeffizientes Haus mit Luftwärmepumpe und Photovoltaikanlage errichtet.
Für die Pflege der Anlage steht ein Hausmeister- und Hausverwaltungsservice zur Verfügung.
Die detaillierte Ausstattungsliste finden Sie im Exposé.
Bodenbeläge, Fliesen und Sanitärobjekte können individuell in unserer Ausstellungshalle bemustert werden.Besonderheiten
Dachgeschosswohnung mit Balkon (ca. 9,27 m²)
Ca. 62,54 m² Wohnfläche
Lichtdurchfluteter Wohn-/Essbereich mit offener Küche
Tageslichtbad mit bodengleicher Dusche
Aufzug direkt ins Dachgeschoss
Individuelle Bemusterung in unserer Ausstellung
Zahlungen nach Makler- und Bauträgerverordnung (MaBV)
Fertigstellung bis November 2027Wir hoffen Ihr Interesse für dieses Objekt geweckt zu haben und würden uns freuen, Sie bei einer persönlichen Besichtigung begrüßen zu dürfen.
Ausstattung
Ein Angebot, welches fast keine Wünsche offen lässt!
Die Architektur ist anspruchsvoll und dabei zeitlos!
Alle Eigentumswohnungen profitieren von einem idealen Raumkonzept, das eine helle, freundliche Atmosphäre verspricht.HIGHLIGHTS AUF EINEN BLICK
- Aufzug
- Höchste Effizienz durch Luftwärmepumpe
- Multimediaverteiler Unterputz
- Photovoltaikanlage
- Hausverwaltung und Hausmeister
- Kontrollierte Be- u. Entlüftungsanlage dezentral (Dezentrale Wohnraumlüftung - Mit Wärmerückgewinnung)
- Elegante Lack-Innentüren mit Profilfräsungen
- Bewegungsmelder im Flur
- Video Türsprechanlage
- Rauchmelder in Schlafräumen u. Fluren
- TV & Netzwerk-Dosen in Wohn- u. Schlafräumen
- Elektrische Rollläden in allen Wohnräumen
- Fußbodenheizung mit digitaler Einzelraumsteuerung
- Barrierefreie Duschen (Duschrinne, bodeneben)
- Sanitärobjekte Villeroy & Boch
- Bad-Armaturen Hansgrohe
- Echtglas-Duschabtrennungen
- Hochwertige Bodenbeläge nach Bemusterung (Fliesen, Laminat, Parkett oder Vinyl)
- Design-Fliesen (Feinsteinzeug)
- Edelputz-Wandbeläge
- Wände verputz
- Carport und StellplätzeLage
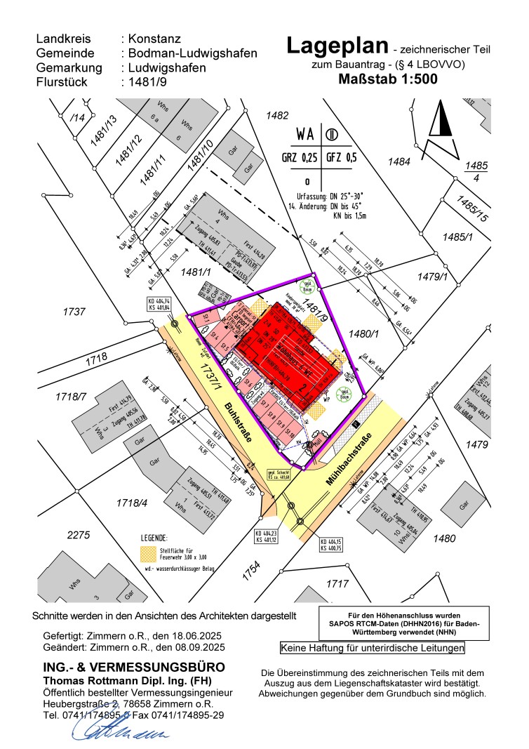
Die Wohnung befindet sich in zentraler Lage von Bodman-Ludwigshafen, nur wenige Schritte vom Bodensee entfernt. Alle Dinge des täglichen Bedarfs wie Einkaufsmöglichkeiten, Bäckereien,
Restaurants, Cafés und Ärzte sind bequem zu Fuß erreichbar. Auch der Bahnhof sowie die Anlegestellen der Bodensee-Schifffahrt liegen in unmittelbarer Nähe.
Besonders hervorzuheben ist die reizvolle Umgebung: Spazier- und Radwege entlang des Sees, der Yachthafen sowie zahlreiche Freizeit- und Wassersportmöglichkeiten bieten eine hohe Lebensqualität. Schulen, Kindergärten und kulturelle Einrichtungen sind ebenfalls schnell zu erreichen, sodass die Lage sowohl für Familien als auch für Paare und Singles attraktiv ist.
Die gute Verkehrsanbindung über die B31 macht den Standort zudem ideal für Pendler in Richtung Überlingen, Konstanz oder Stockach.
Bodman-Ludwigshafen verbindet die idyllische Seelage mit einer hervorragenden Infrastruktur – ein Ort, an dem Wohnen und Leben zum Genuss werden.
Bodman-Ludwigshafen ist eine Doppelgemeinde am westlichen Ende des Bodensees, deren beide beschaulichen Orte Bodman und Ludwigshafen sich an den Ufern des Überlinger Sees gegenüberliegen. Umgeben von grünen Bergrücken und verbunden über das Naturschutzgebiet, das zwischen Bodman und Ludwigshafen liegt, sind die beiden Orte eingebunden in eine idyllische
Naturlandschaft, die vorrangig vom Obstbau geprägt ist.
Bodman-Ludwigshafen ist eine sympathische Doppelgemeinde, deren Orte sich an den Ufern des Überlinger Sees gegenüberliegen. Mit Bodman-Ludwigshafen muss es jemand besonders gut gemeint haben: Umgeben von tiefgrünen Bergrücken und verbunden über ein Naturschutzgebiet, sind die beiden Orte, zwischen denen das Wasser des Bodensees glitzert, eingebunden in eine idyllische Naturlandschaft, die vorrangig vom Obstbau geprägt ist.
Historische Stätten und Gebäude erzählen noch heute ihre Geschichten von einer spannenden Vergangenheit der beiden Orte.
Zahlreiche Freizeitmöglichkeiten – ob an Land oder auf dem Wasser – lassen hier die Urlaubstage wie im Flug vergehen: Wandern, Radfahren, Wassersport oder sich an Deck bei einer Schifffahrt den Fahrtwind um die Nase wehen lassen. Auch wer einfach Ruhe und Erholung inmitten von ländlicher Idylle sucht, ist in Bodman-Ludwigshafen goldrichtig.Sonstiges
Herzlich willkommen bei AUER & BRACHAT IMMOBILIEN GMBH seit über 55 Jahre am Bodensee.
Wir engagieren uns gezielt für die Realisierung Ihrer individuellen Immobilienwünsche.
Unsere Kernkompetenz liegt in der Vermittlung privater Immobilien – unabhängig von Größenordnung und Wertigkeit. Ob Sie eine Eigentumswohnung oder eine repräsentative Jugendstilvilla veräußern, eine Neubauwohnung erwerben und gleichzeitig Ihr Bestandshaus verkaufen oder eine neue Immobilie kaufen möchten – wir begleiten Sie dabei.
Jede Immobilie ist einzigartig und erfordert einen Makler, der sich konsequent für Ihre Interessen einsetzt und das Objekt bestmöglich im Markt präsentiert.
Unsere fundierte Erfahrung als Immobilienmakler, gepaart mit langjähriger Expertise aus Verkauf und Marketing, ermöglicht es uns, das Potential Ihrer Immobilie präzise zu erkennen und den passenden Käuferkreis zu identifizieren.Durch ausgeprägte Kommunikationsfähigkeit können wir sehr gut auf die teils gegensätzlichen Interessen von Käufer- und Verkäuferseite eingehen und erfolgreich vermitteln.
Als Ihr verlässlicher Immobilienmakler beraten wir Sie umfassend bei der marktkonformen Preisfindung. Wir betreuen Sie lückenlos: von der Beschaffung aller verkaufsrelevanten Objektunterlagen über die notarielle Beurkundung bis zur finalen Schlüsselübergabe.Wir machen das seit 1970 am Bodensee.
Alle Beschreibung anzeigen
Für Rückfragen und ein persönliches Gespräch stehen wir Ihnen jederzeit gerne zur Verfügung.
Verkehrsanbindung
- Fußweg zu öffentl. Verkehrsmitteln: 2 Min.
- Fahrzeit nächste Autobahn: 10 Min.
- Fahrzeit nächster Hauptbahnhof: 10 Min.
- Fahrzeit nächster Flughafen: 60 Min.
Ausstattung
- Keller: Ja
- Personenaufzug: Ja
- Balkon / Terrasse: Ja
- Abstellraum: Ja
Energie
- Wesentlicher Energieträger: Wärmepumpe
- Heizungsart: Fußbodenheizung
- Baujahr Anlagentechnik: 2027
- Energieausweis: liegt vor
- Energieausweistyp: Verbrauchsausweis
- Ausstellungsdatum: 25.10.25
- Erstellungsdatum ab: 01.05.14
- gültig bis: 20.10.25
- Energieeffizienzklassen: A+


